Project 2
Contextual Fit
This project involved an expansion of the renowned Smith House, originally designed by Architect Richard Meier in 1965. The goal was to incorporate a new system of rooms and spaces while preserving the of the original design.

Narrative
The Smith family enjoys spending quality time together while using their telescopes to view the stars at night. They have made the decision to expand their distinctive house in order to address this. They want to enlarge their family room so they can gaze up at the sky and see the stars, moon, and more. While Mrs. Smith wants to expand the family room and provide more outdoor space for her family to enjoy, Mr. Smith has been interested in having a fitness center without having to travel far.
Hierarchy: Family Room
Meta-Idea: Telescope
Existing Floor Plans

Sorting of Spaces

Existing Building Systems & Patterns

Mass Diagram

Final Floor Plans


Expanded Systems

Sections



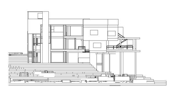
Elevations

Front-view

Right-view

Left-view

Back-view
3D Renderings



Isometric Renderings


